Active
New Construction- 4 Buildings
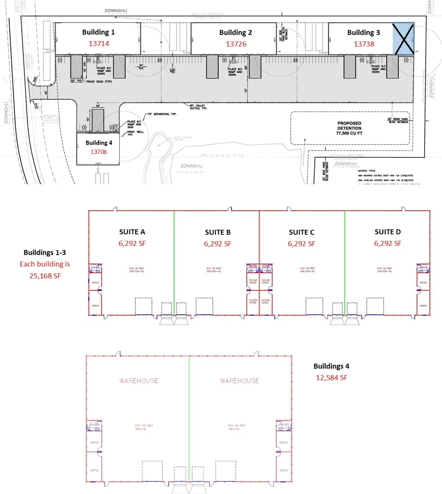
13706 WOODLANN HILLSDR, Cedar Springs, MI 49319
1 / 8

Overview
New Construction. Multiple Space options available within 4 Buildings ranging from 6,292 to 81,576 SF.
Building 1-3 are 25,168 SF each and Building 4 is 12,584 SF.
Office build out to be determined per lease terms
Separate metered Gas and Electric
Building 1 and 2 have 208v/3P- each suite has a 200 amp panel
Building 3 and 4 have 480/277v/ 3P - each suite had a 400 amp panel
Lease Spaces
| Name | Rate | SF | Available Date | |
|---|---|---|---|---|
| Building 1-2 ALL Building 3 Suite A-B-C | $6.25 /SF/Year | 68,992 SF | 11/01/2025 | |
| Building 1 & 2 - ALL | $6.25 /SF/Year | 50,336 SF | 11/01/2025 | |
| Building 1 -ALL Building 2 - Suite A-B | $6.25 /SF/Year | 37,752 SF | 11/01/2025 | |
| Building 1 - ALL | $6.25 /SF/Year | 25,168 SF | 11/01/2025 | |
| Building 1 - Suite A-B-C | $6.5 /SF/Year | 18,876 SF | 11/01/2025 | |
| Building 1 - Suite A-B | $6.5 /SF/Year | 12,584 SF | 11/01/2025 | |
| Building 1 - Suite A | $6.5 /SF/Year | 6,292 SF | 11/01/2025 | |
| Building 1-4 (not including Suite D of Building 3) | $6.25 /SF/Year | 81,576 SF | 11/01/2025 |
For Lease
Industrial
Secondary Uses: Mixed Use
- Lease Rate
- $6.25 - $6.5 SF/year
- Available SF
- 6,292 - 81,576 SF
- Total Available SF
- 88,088 SF
- Building Size
- 88,088 SF
- Office SF
- 500 SF
- Acres
- 19.39 ac
- Zoning
- PUD
- Lease Type
- NNN
- Building Class
- A
- Number of Buildings
- 4
- Floors
- 1
- Year Built
- 2025
- Nearest MSA
- Grand Rapids-Kentwood
- Property Status
- Existing
- Dock Number
- 14
- Drive-In Number
- 14
- Ceiling Height
- 18' - 18'
- Clear Height
- 18'
- Power Provider
- Consumers Energy
- Water Provider
- Well
- Sewer Provider
- Septic
- Natural Gas Provider
- DTE
- County
- Kent
- Available
- 10/01/2025
- Created
- 09/29/2025
- Updated
- 11/10/2025
- Listing ID
- 760895d1
- Parcel APN
- 410234200023
Contact Brokers
Property Area Insights
presented by Placer.ai






