Premier office spaces directly across from Holland Hospital
601 Michigan Ave, Holland, MI 49423

Overview
High profile office building located at 601 Michigan Ave, directly across from Holland Hospital. Office suite is located in the lower level with common entry to the building at the lower level doors with ample parking.
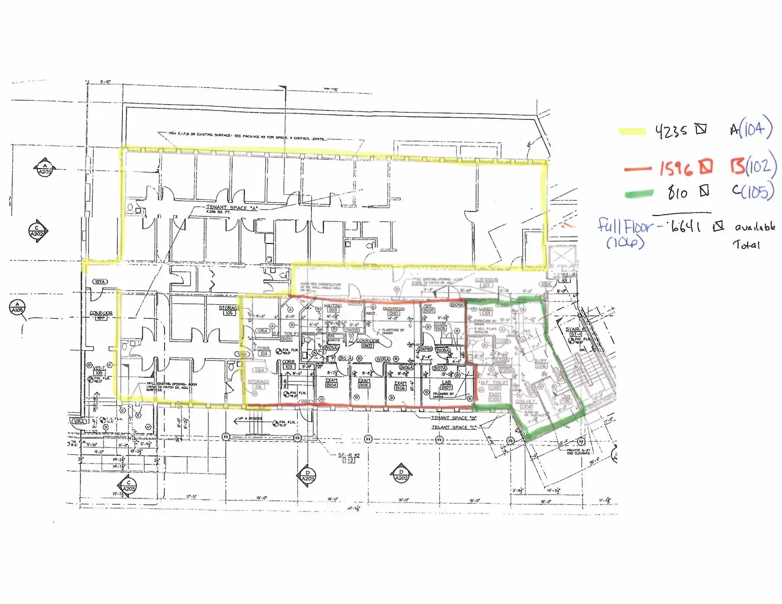
Suite 102 is currently set up as a dental office with exam rooms, clerical and waiting areas. Plumbing is run throughout and the owner may remodel to suit. 1,596 sq. ft. available or less, with approval from the landlord.
Suite 104 is currently set up as a medical office with exam rooms, clerical and waiting areas. Plumbing is run throughout and the owner may remodel to suit. 4,235 sq. ft. available or less, with approval from the landlord.
Suite 105 is a smaller medical office with 2 exam rooms, clerical and waiting areas and approximately 810 sq. ft. The owner may remodel to suit.
Suite 106 is the complete lower level with 6,641 sq. ft. of office space. This space consists of several offices and exam rooms. Various suites can be combined or reconfigured and/or remodeled to suit by the owner.
Lease Spaces
| Name | Rate | SF | |
|---|---|---|---|
| Suite 105, 104, 102 & 106 | $17 /SF/Year | 6,641 SF |
For Lease
Secondary Uses: Medical
- Lease Rate
- $17 SF/year
- Available SF
- 6,641 SF
- Building Size
- 18,384 SF
- Acres
- 1.497 ac
- Zoning
- F-RM
- Lease Type
- NNN
- Showing Instructions
- Contact Broker
- Building Class
- C
- Number of Buildings
- 1
- Floors
- 2
- Year Built
- 1973
- Construction Type
- Framed
- Rentable SF
- 750
- Nearest MSA
- Holland-Grand Haven
- Property Status
- Existing
- County
- Ottawa
- Created
- 03/08/2023
- Updated
- 09/07/2024
- Listing ID
- e3e24631
- Parcel APN
- 70-16-32-326-021
Contact Broker
Property Area Insights
presented by Placer.ai



